Deposito in vendita

Melito Di Napoli, Via XXV Aprile
€ 20.000
1 locale 1 locale
94 Mq 94 Mq

Deposito in vendita

Melito Di Napoli, Via XXV Aprile

Descrizione annuncio

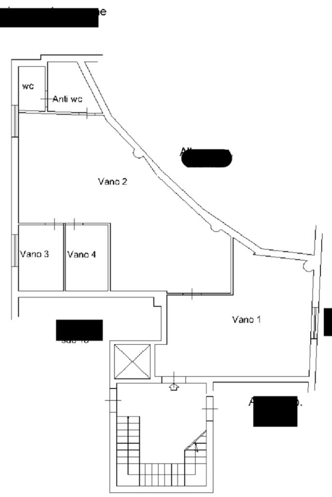
Proponiamo un deposito in vendita di 94 mq, situato all'interno di un condominio privato, offre un ambiente tranquillo e riservato, ideale per chi cerca uno spazio sicuro e accessibile. La metratura generosa rende questo deposito perfetto per uso personale, consentendo di organizzare al meglio i propri beni, oppure per esigenze logistiche, grazie alla possibilità di gestire e stoccare materiali in modo efficiente. La posizione strategica nel comune di Melito di Napoli garantisce un facile accesso alle principali vie di comunicazione, facilitando spostamenti e operazioni di carico e scarico. Questo deposito rappresenta una soluzione versatile e funzionale per chi desidera ottimizzare lo spazio a disposizione, in un contesto che assicura privacy e tranquillità.

Mostra tutto

Nelle vicinanze

Trasporto pubblico Trasporto pubblico
Mugnano
Mugnano
830 m
Giugliano
Giugliano
1,6 Km
Trasporto pubblico
1,2 Km
Piazza Tafuri - Via Plebiscito
Piazza Tafuri - Via Plebiscito
2,6 Km
Ricariche auto elettriche Ricariche auto elettriche
Brasiello Carservice | EnelX
2,6 Km
Scuole Scuole
Scuole
840 m
Liceo Emilio Segrè
1,4 Km
Scuola Gennaro Sequino
1,6 Km
Istituto Comprensivo Ilaria Alpi - Carlo Levi
1,6 Km
Scuola materna ed elementare Sacro Cuore
2,1 Km
Farmacia Farmacia
San Biagio
1,3 Km
Paloschi
1,5 Km
Farmacia Chiefalo del Dr G. De Stasio
2,4 Km
Farmacia
2,5 Km
Farmacia Vivo
2,5 Km
Ospedali Ospedali
San Giuliano
2,6 Km
Villa dei fiori
2,7 Km
Distretto Sanitario
2,8 Km
Supermercati Supermercati
Lidl
370 m
Supermercati
490 m
EnneSì
680 m
Alimentari Eliseo
1,8 Km
MD
1,9 Km
Negozi Negozi
Exploit
440 m
Outfit
1,1 Km
Negozi
2,0 Km
OVS
2,1 Km
Pancas
2,5 Km
Bar Bar
Bar Paradise
520 m
Bar Alexander
690 m
Bar
790 m
Bar Signorelli
840 m
Le Maistè
1,2 Km
Ristoranti Ristoranti
Ristoranti
560 m
Freedom
1,1 Km
Leone RistoBracePizza
2,0 Km
Il Rusticone
2,0 Km
Vesy e Mac Rey
2,0 Km
Mostra tutto

Caratteristiche

Rif.:
61105617
Piano:
Seminterrato di 2
Totale piani:
2
Posti auto:
1
Condizionamento:
Autonomo
Ascensore:
No
Mostra tutto
Prezzo Prezzo
€ 20.000
Rata mutuo Rata mutuo
€ 95 / mese
Spese annue Spese annue
€ 0
Proponi il tuo prezzoProponi il tuo prezzo

Altre caratteristiche

Descrizione dei locali
Bagno Con Finestra

Classe Energetica

G
G
G
G
G
G
G
G
G
Anno di costruzione:
1990
Riscaldamento:
Autonomo
Tipo impianto:
A radiatori
Tipo alimentazione:
Metano

Ti interessa visionare l'immobile?

Fissa un appuntamento  Fissa un appuntamento

Richiedi informazioni

Clicca su Leggi per aprire l'informativa
* Questi campi sono obbligatori

Calcola il tuo mutuo

Semplice e senza impegno
Anticipo

( % )
Mutuo

( % )

pochi semplici passi

inserisci i tuoi dati
Questionario completato
Grazie per aver richiesto un appuntamento senza impegno con un nostro Consulente del Credito e Assicurativo.

Hai inserito correttamente tutti i dati necessari e a breve riceverai una e-mail con un link da convalidare per inviare i tuoi dati.
Affiliato
Aria Industriale Srl
Corso Europa, 157/159 80017 Melito Di Napoli (NA)

Il nostro staff


  • Carmine Della Corte
    Responsabile

  • Veronica Esposito
    Coordinatrice
Corso Europa, 157/159 80017 Melito Di Napoli (NA)
Zona: Melito di Napoli
Mostra su mappa
Orari: dal Lunedì al Venerdì 09:00-13:00/15:30-20:00 Chiusura pomeridiana del Sabato ore 14:00
Affiliato
Aria Industriale Srl
Corso Europa, 157/159 80017 Melito Di Napoli (NA)

2026 Tecnocasa Franchising S.p.A. - P. IVA 08365160152 - Via Monte Bianco 60/A 20089 Rozzano (MI). Ogni agenzia ha un proprio titolare ed è autonoma. Privacy policy | Policy utilizzo | Cookie policy